SE VENDE ESTUPENDO CHALET ADOSADO DE 155 M2 CON 6 DORMITORIOS EN ZONA MAMELON Y ALVARO DOMECQ CON GARAGE OPCIONAL EN JEREZ DE LA FRONTERA
(Ref. 10041)
Chalet en venta en Jerez de la Frontera, 349.000 €
Descripción
SE VENDE ESTUPENDO CHALET ADOSADO DE 155 M2 CON 6 DORMITORIOS EN ZONA MAMELON Y ALVARO DOMECQ CON GARAJE OPCIONAL EN JEREZ DE LA FRONTERA
- Vivienda muy exclusiva por zona céntrica,alidades, gransuperficie habitable y garaje para 2 coches
- Residencial privado
- En el interior se encuentra un patio comunitario cerrado tan solo para 5 casas
- Situada en el centro de jerez, junto a la Plaza del Mamelón
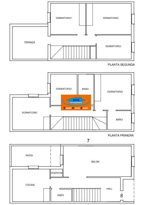
- La vivienda tiene 155 m construidos (121 m2 útiles)
- Planta baja: cuenta con un amplio salón-comedor, cocina con patio y lavadero, y un aseo
- Planta primera: tiene tres dormitorios y dos baños completos, uno de ellos ensuite dentro del dormitorio principal
- Todas las ventanas de la planta baja y la primera planta tienen instaladas mosquiteras retráctiles nuevas
- Para subir a la primera planta, en las escaleras hay instalada una silla elevadora para personas con movilidad reducida
- La segunda planta dispone de otros tres dormitorios y una terraza de 12 m2
- Los 6 dormitorios cuentan con armarios empotrados vestidos con baldas o cajoneras
- El suelo de la planta baja y los dormitorios de la primera planta son de tarima flotante
- Las escaleras y el distribuidor de la primera planta son de mármol.
- En el salon hay instalado un Split de aire acondicionado frío/calor
- Además la casa tiene instalación de calefacción con chimenea-estufa de pellets
- La vivienda también cuenta con plaza de aparcamiento OPCIONAL de 35,60 M2 en garaje subterráneo en la que se pueden aparcar hasta dos vehiculos. PRECIO ADICIONAL 25.000 €. Acceso al garaje por escaleras o ascensor
MEJOR VISITAR!
Características
Superficies
Estado
Servicios
Precio
349.000 €
Rebajado 0,29%
Certificado energético
|
CALIFICACIÓN ENERGÉTICA
|
Consumo energía kW h / m2 año |
Emisiones CO2 kg CO2 / m2 año |
|---|---|---|
| A | ||
| B | ||
| C | ||
| D | ||
| E | ||
| F | ||
| G |
Situación y Entorno
Propiedades similares
Propiedades similares
SE VENDE ESTUPENDO CHALET INDEOENDIENTE EN PAR...
SE VENDE ESTUPENDO CHALET INDEOENDIENTE EN PARCELA URBANA DE 500 M2 EN LA ZONA DE MONTEOLIVETE DE SANLUCAR DE BARRAMEDA -...
SE VENDE ESTUPENDO CHALET PAREADO DE 165 M2 CO...
SE VENDE ESTUPENDO CHALET PAREADO DE 165 M2 CON 4 DORMITORIOS Y 2 BAÑOS EN RESIDENCIAL ESPÍRITU SANTO DE SANLUCAR DE BARRAMEDA -...






















