Ref. 10041
SE VENDE ESTUPENDO CHALET ADOSADO DE 155 M2 CON 6 DORMITORIOS EN ZONA MAMELON Y ALVARO DOMECQ CON GARAJE OPCIONAL EN JEREZ DE LA FRONTERA
- Vivienda muy exclusiva por zona céntrica,alidades, gransuperficie habitable y garaje para 2 coches
- Residencial privado
- En el interior se encuentra un patio comunitario cerrado tan solo para 5 casas
- Situada en el centro de jerez, junto a la Plaza del Mamelón
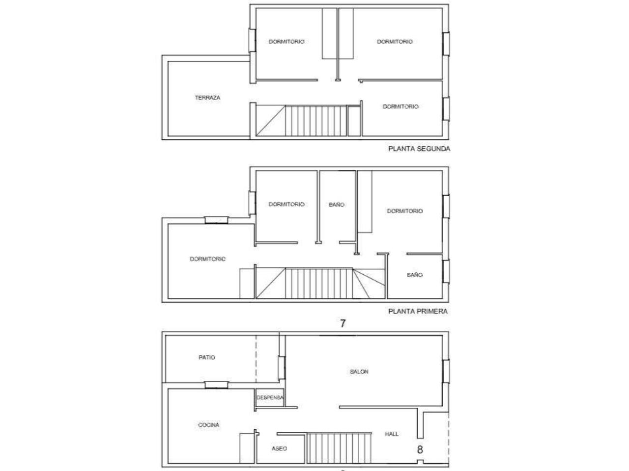
- La vivienda tiene 155 m construidos (121 m2 útiles)
- Planta baja: cuenta con un amplio salón-comedor, cocina con patio y lavadero, y un aseo
- Planta primera: tiene tres dormitorios y dos baños completos, uno de ellos ensuite dentro del dormitorio principal
- Todas las ventanas de la planta baja y la primera planta tienen instaladas mosquiteras retráctiles nuevas
- Para subir a la primera planta, en las escaleras hay instalada una silla elevadora para personas con movilidad reducida
- La segunda planta dispone de otros tres dormitorios y una terraza de 12 m2
- Los 6 dormitorios cuentan con armarios empotrados vestidos con baldas o cajoneras
- El suelo de la planta baja y los dormitorios de la primera planta son de tarima flotante
- Las escaleras y el distribuidor de la primera planta son de mármol.
- En el salon hay instalado un Split de aire acondicionado frío/calor
- Además la casa tiene instalación de calefacción con chimenea-estufa de pellets
- La vivienda también cuenta con plaza de aparcamiento OPCIONAL de 35,60 M2 en garaje subterráneo en la que se pueden aparcar hasta dos vehiculos. PRECIO ADICIONAL 25.000 €. Acceso al garaje por escaleras o ascensor
MEJOR VISITAR!
SE VENDE ESTUPENDO CHALET ADOSADO DE 155 M2 CON 6 DORMITORIOS EN ZONA MAMELON Y ALVARO DOMECQ CON GARAJE OPCIONAL EN JEREZ DE LA FRONTERA
- Vivienda muy exclusiva por zona céntrica,ali...
SE VENDE ESTUPENDO CHALET ADOSADO DE 155 M2 CON 6 DORMITORIOS EN ZONA MAMELON Y ALVARO DOMECQ CON GARAJE OPCIONAL EN JEREZ DE LA FRONTERA
- Vivienda muy exclusiva por zona céntrica,alidades, gransuperficie habitable y garaje para 2 coches
- Residencial privado
- En el interior se encuentra un patio comunitario cerrado tan solo para 5 casas
- Situada en el centro de jerez, junto a la Plaza del Mamelón
- La vivienda tiene 155 m construidos (121 m2 útiles)
- Planta baja: cuenta con un amplio salón-comedor, cocina con patio y lavadero, y un aseo
- Planta primera: tiene tres dormitorios y dos baños completos, uno de ellos ensuite dentro del dormitorio principal
- Todas las ventanas de la planta baja y la primera planta tienen instaladas mosquiteras retráctiles nuevas
- Para subir a la primera planta, en las escaleras hay instalada una silla elevadora para personas con movilidad reducida
- La segunda planta dispone de otros tres dormitorios y una terraza de 12 m2
- Los 6 dormitorios cuentan con armarios empotrados vestidos con baldas o cajoneras
- El suelo de la planta baja y los dormitorios de la primera planta son de tarima flotante
- Las escaleras y el distribuidor de la primera planta son de mármol.
- En el salon hay instalado un Split de aire acondicionado frío/calor
- Además la casa tiene instalación de calefacción con chimenea-estufa de pellets
- La vivienda también cuenta con plaza de aparcamiento OPCIONAL de 35,60 M2 en garaje subterráneo en la que se pueden aparcar hasta dos vehiculos. PRECIO ADICIONAL 25.000 €. Acceso al garaje por escaleras o ascensor
MEJOR VISITAR!
Leer más
|
Orientación |
Sureste
|
|
Calefacción |
|
|
Superficie útil |
155 m2
|
| Índ. precio alquiler |
0 |